Foto levereras av Google Street View och kan vara oprecist:
Kontor att hyra, Hedemora, Ivarshyttevägen 6
Ivarshyttevägen 6, Hedemora- Kontor att hyra
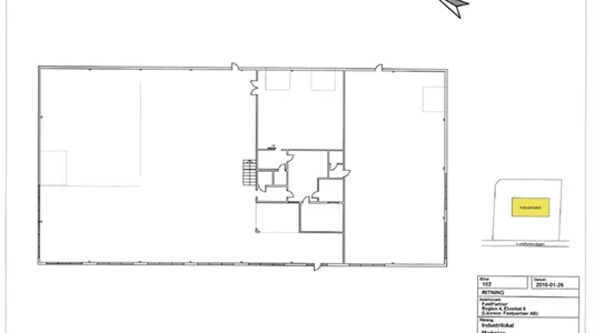
- 788 m2

Ivarshyttevägen 6, Hedemora
- Kontor att hyra
- 788 m2
FÅ MER INFO OM LOKALEN
Du länkas till en annan portal, som kan kan kräva betalning eller skapande av en använderprofil
Kontor att hyra, Hedemora, Ivarshyttevägen 6
Fakta
- 531771
- Kontor
- Industrilokal
- Lager
- 788 m2
- Inte angivet
FÅ MER INFO OM LOKALEN
Du länkas till en annan portal, som kan kan kräva betalning eller skapande av en använderprofil
Modern, funktionell fastighet i ett plan med portar och stora markytor
Tillfälle att etablera butik eller lagerverksamhet i industriområde i Hedemora!
Ytan och lokalen kan anpassas efter behov.En lokal som är perfekt för butik eller lagerverksamhet. Bra skyltläge vid Ivarshyttevägen. Lokalen har attraktiva grannar som drar många människor till området.Öppen med ett par rumNära centrumJaEnligt överenskommelseFastpartner är ett börsnoterat fastighetsbolag som äger och förvaltar fastigheter långsiktigt med egen personal. Vår affärsidé är att skapa goda och långvariga relationer med våra hyresgäster genom att vara lyhörda för våra hyresgästers önskemål samt engagerade i förvaltningen och utvecklingen av våra fastigheter. Vårt fastighetsbestånd är koncentrerat till Stockholm, men vi har också lokaler på ett flertal expansiva orter i Sverige, bla Göteborg, Malmö, Norrköping, Uppsala och Gävle. Vi tycker det är kul att arbeta med den tekniska utvecklingen av våra fastigheter. Vi ser att det både finns en vinning för miljön och plånboken i att vara en engagerad hyresvärd. Vår organisation genomsyras av en entreprenörsanda och har korta beslutsvägar vilket uppskattas av våra hyresgäster. Välkommen till Fastpartner!Bra funktionell fastighet i ett plan med goda rangerytor.I Hedemoras bästa verksamhetsområde
Ytan och lokalen kan anpassas efter behov.En lokal som är perfekt för butik eller lagerverksamhet. Bra skyltläge vid Ivarshyttevägen. Lokalen har attraktiva grannar som drar många människor till området.Öppen med ett par rumNära centrumJaEnligt överenskommelseFastpartner är ett börsnoterat fastighetsbolag som äger och förvaltar fastigheter långsiktigt med egen personal. Vår affärsidé är att skapa goda och långvariga relationer med våra hyresgäster genom att vara lyhörda för våra hyresgästers önskemål samt engagerade i förvaltningen och utvecklingen av våra fastigheter. Vårt fastighetsbestånd är koncentrerat till Stockholm, men vi har också lokaler på ett flertal expansiva orter i Sverige, bla Göteborg, Malmö, Norrköping, Uppsala och Gävle. Vi tycker det är kul att arbeta med den tekniska utvecklingen av våra fastigheter. Vi ser att det både finns en vinning för miljön och plånboken i att vara en engagerad hyresvärd. Vår organisation genomsyras av en entreprenörsanda och har korta beslutsvägar vilket uppskattas av våra hyresgäster. Välkommen till Fastpartner!Bra funktionell fastighet i ett plan med goda rangerytor.I Hedemoras bästa verksamhetsområde
Information och data
Detta förråd, som även kan användas till Industrilokal eller Lager, ligger på Ivarshyttevägen i Hedemora. Hedemora ligger i kommunen Hedemora, som ligger i Dalarna. Lokalen är totalt 788 m2.